2023
the spires twins
the spires twins



project type
Historic Preservation / Public Architecture
role
Architectural Designer
teammates
Sansiri Saensopa
instructors
Rami Abou-Khalil + Ivi Diamantopoulou
for
Syracuse University SoA Design Studio Project
project overview
After a six-alarm fire in 2020 destroyed the historic Middle Collegiate Church in New York’s East Village, leaving only its façade intact, this project proposes a new building that preserves the church’s legacy while reactivating the site for contemporary use.
The preserved façade becomes the symbolic core of the design, framed by two new towers inspired by the angles of the original spires. Limewashed brick and Indiana limestone create a dialogue between old and new, referencing the historic textures of the East Village.
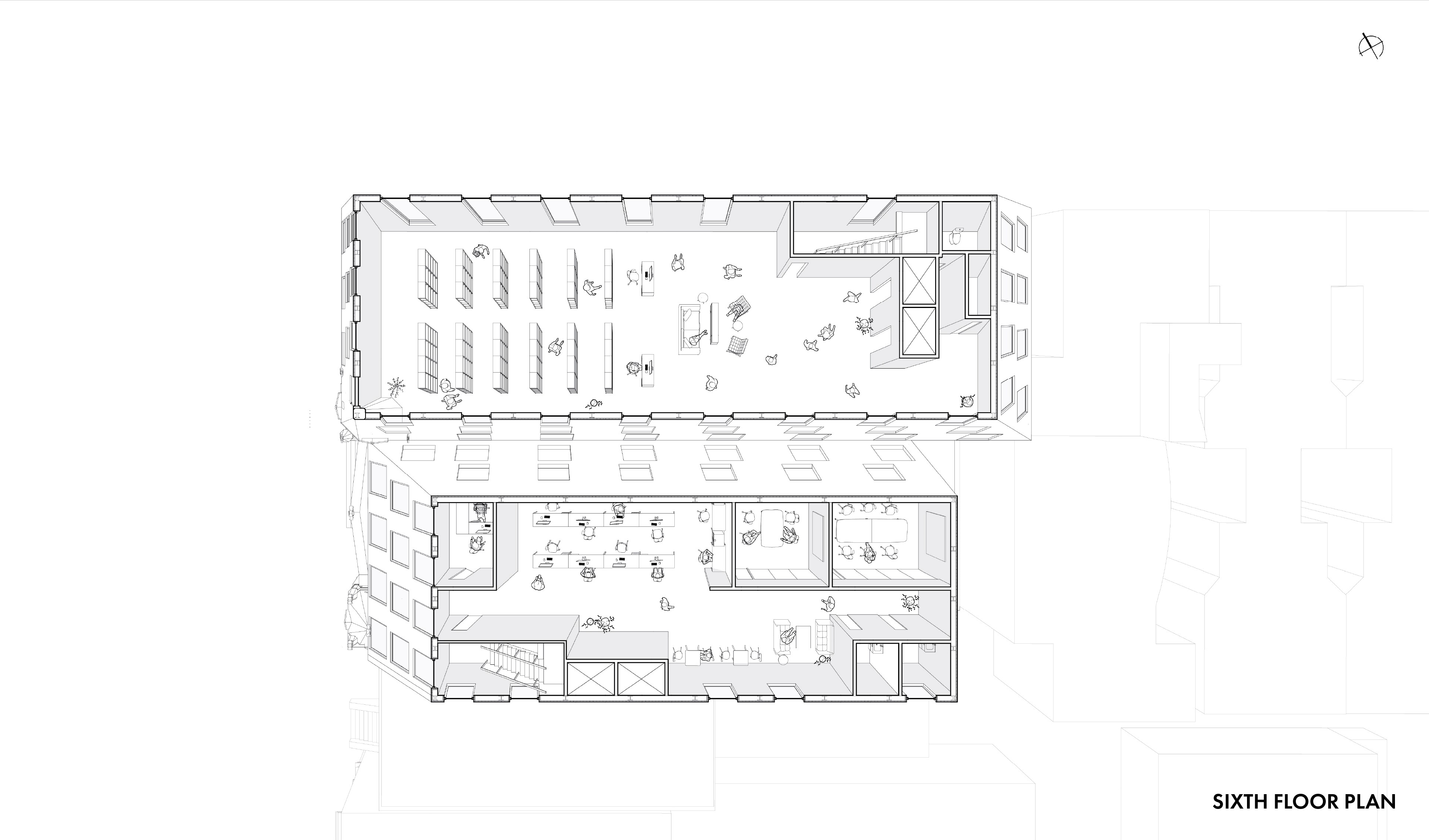
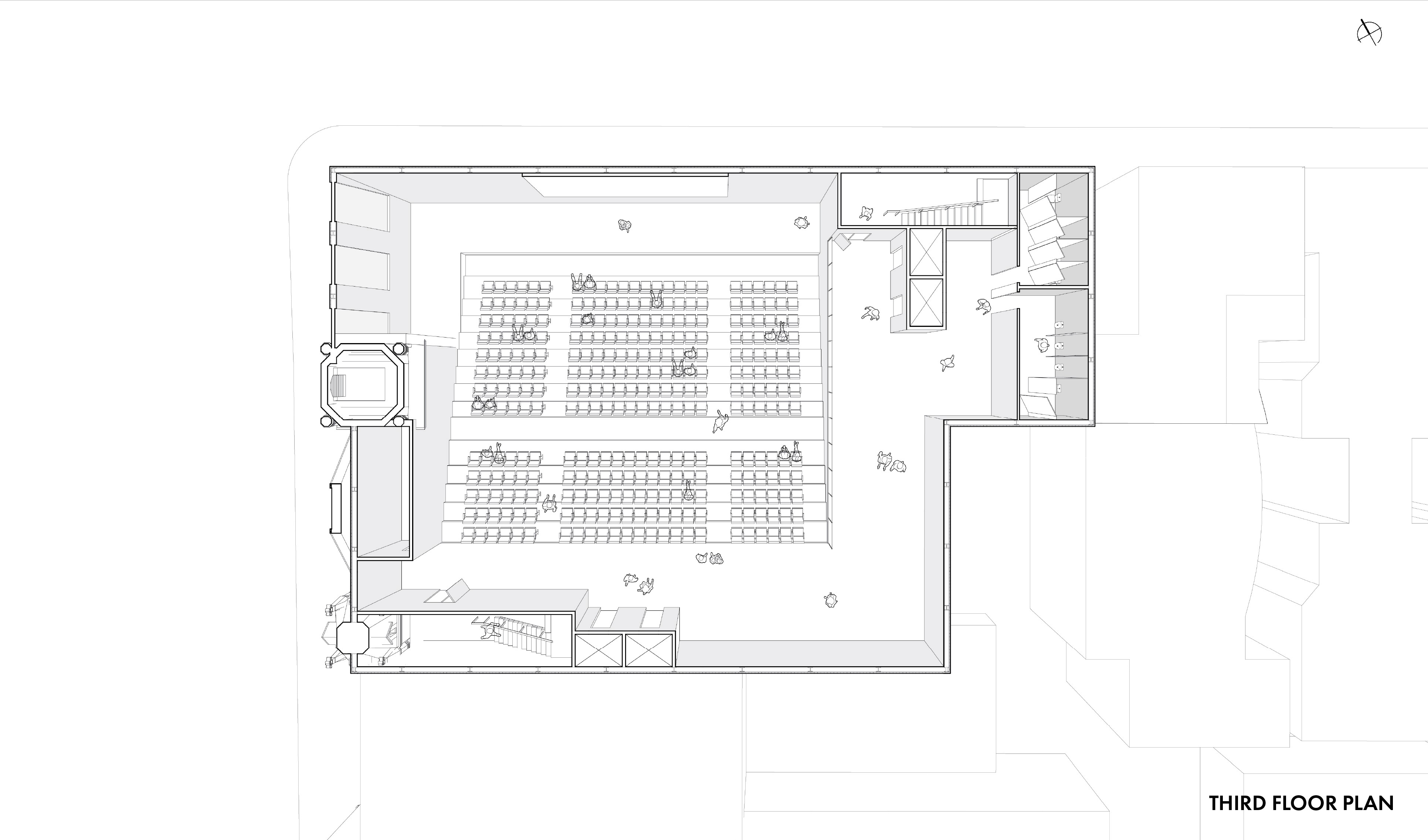
The building is divided into two towers—one for public programs such as galleries and a hearing hall, and the other for office spaces—connected by a “kissing” moment on the third floor that fosters interaction between public and private users. A shared courtyard network and archival material labs further ensure that the memory of the church continues to shape the future of the site.
After a six-alarm fire in 2020 destroyed the historic Middle Collegiate Church in New York’s East Village, leaving only its façade intact, this project proposes a new building that preserves the church’s legacy while reactivating the site for contemporary use.
The preserved façade becomes the symbolic core of the design, framed by two new towers inspired by the angles of the original spires. Limewashed brick and Indiana limestone create a dialogue between old and new, referencing the historic textures of the East Village.
The building is divided into two towers—one for public programs such as galleries and a hearing hall, and the other for office spaces—connected by a “kissing” moment on the third floor that fosters interaction between public and private users. A shared courtyard network and archival material labs further ensure that the memory of the church continues to shape the future of the site.
gallery
gallery




















